Lot 26 — Eagle Farm — Wilson
In-Planning — 3700 Arrowwood Dr. N
Custom build opportunity with plans in process. Act soon to customize to your needs!
Anticipated Start Date: January 2025
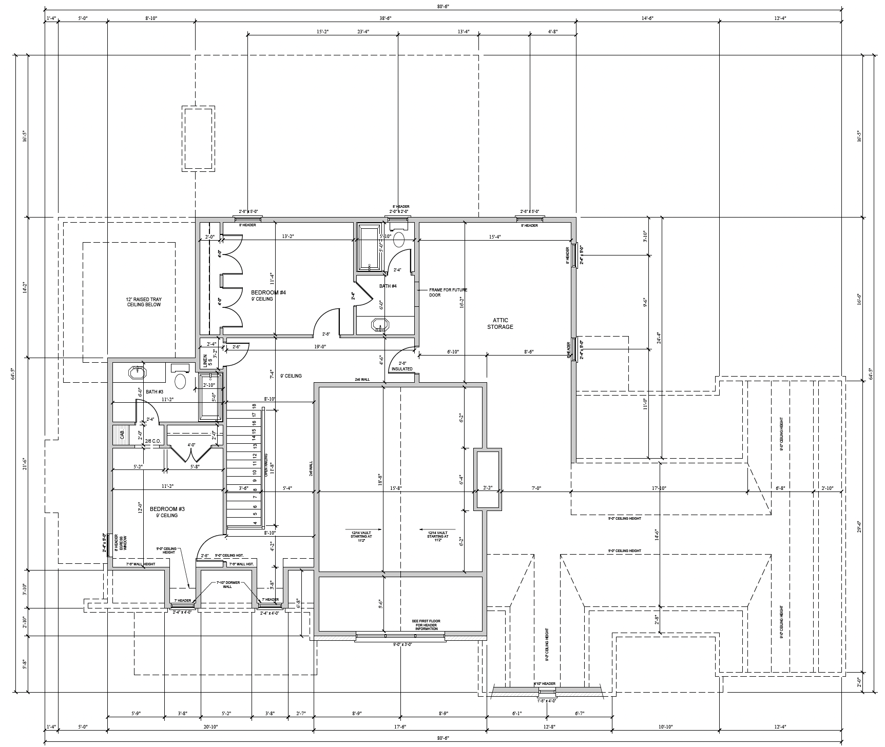
3090 Heated SF
.66 Acre Lot
4 Beds | 4.5 Baths
Custom designed plans
10’ ceilings
Corner lot with wooded privacy at rear
Additional space for bonus room or 5th bedroom available to be finished

